- HOME
- 施工事例一覧
- 戸建住宅全面リフォーム事例一覧
- 広島市佐伯区 N様邸 戸建てリフォーム事例
No.1228 家族みんなが安心安全 バリアフリーの快適な住まい

リビングはテレビまわりの収納を廊下側の扉と同系色でそろえ、統一感のある空間に。掃き出し窓から光を採り入れつつ、壁とサッシの断熱性を高めて居心地を良くしている

2部屋をつなげてゆったりとしたLDKに。床はライトブラウンの幅の広い突板フローリングに張り替え、扉は光が入るように半透明タイプを選択

キッチンは汚れが付きにくく、耐久性の高いクリナップのステンレス天板を選択。ペンダントライトは娘さんがネットショップで選んだお気に入りのアイテム

キッチンのコーナー部分に設けたパントリーはアーチ型の入り口に。コンパクトだが収納力があり、物を出し入れしやすいそう。内部はレンガ調のクロスを使用

和室は天井と壁をそのまま残し、畳をフローリングに変更。「掃除しやすくなり、近所の人が集まるときも椅子が置きやすくて便利です」と奥様

床の間のある和室は既存の壁を残しつつ、地震でひびが入っていた一部(写真左手奥)は耐震補強を行い、壁と同じ色のクロスを張って補修した

お父様がつくったサンルームは床や壁紙を張り替えてリフレッシュ。日当たりが良く、愛猫のお気に入りの居場所にもなっている

和室を洋室に変更した1階の寝室。クローゼットも新設し、物を整理しやすくした。クローゼットの扉はベッドを置いても開けられる3枚引き戸に

2階の娘さんの部屋。二重窓を取り付け壁や天井に断熱材を施工することで、エアコンが効きやすい快適な空間に。収納は整理しやすい大容量のクローゼットを設置

既存の便器を和室近くのトイレに移し、壁紙や床とともに内装を一新した勝手口近くのトイレ。窓には内窓を取り付けている
リフォームのポイント
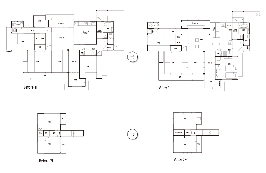
ダイニングキッチンとリビングの壁を取り払い、開放的なLDKに。キッチンは位置を変え、家族と会話をしたりテレビを見たりしながら作業ができる対面式にした。全体の耐震性を上げるために必要な箇所に補強を入れ、増築部分は減築。寝室やLDKを中心に壁断熱を行い、断熱性も高めている。2階は断熱施工のほか、各部屋の収納を1カ所にまとめて使いやすくした。
間取り

リフォーム概要
| 種類 | 戸建て |
|---|---|
| 築年数 | 約37年 |
| 延床面積 | 約190㎡(約57.6坪) |
| 施工面積 | 約165㎡(約50坪) |
| 施工箇所 | 浴室・洗面・和室8畳以外 |
| 工事期間 | 約4カ月 |
| 家族構成 | 3人(夫婦+子ども1人) |
| 施工 | マエダハウジング五日市店 |
リフォーム前


