- HOME
- 施工事例一覧
- 戸建住宅全面リフォーム事例一覧
- 広島市安佐南区祇園 S様邸 戸建住宅全面リフォーム事例
No.061 広島市安佐南区祇園 S様邸 戸建住宅全面リフォーム事例
お子さまのびやか!光あふれて心広がる、空間リフォーム


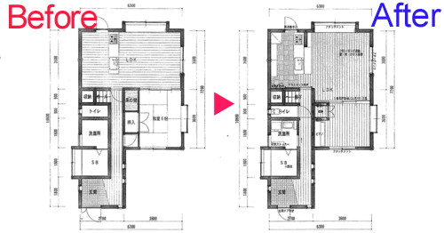
きっかけは2階のピアノを1階に下ろし、一室を子供部屋にしたいというご要望。ご相談の末にLDKや水廻り、外壁塗装までの全面的な改装をすることに。LDKは隣接の和室との仕切りを取り払って広さを増し、床にはサクラの無垢材を張ったため、「素足でも本当に気持ちいい!」とお喜びいただきました。

リフォーム完成
![]() |
![]() |
| 窓際に収納スペースを備えたトイレ。 | 珪藻土を塗った浴室は吸湿効果で窓ガラスの曇りが無くなった。 |
![]() |
![]() |
| 半透明の間仕切りは圧迫感無く天井レールで、床もすっきり。 | 奥様の妹さんがお勤めのショールームで選んだこだわりキッチンはIHだからお掃除も簡単きれい。 |
![]() |
|
| 対面キッチンはご家族の会話を途切れさせません。 |


リフォーム概要
| 住宅形態 | 戸建 |
| 施工部位 | LDK、キッチン、トイレ、浴室 |
| 施工費用 | 580万 |
広く明るいLDKが完成したこちらのリフォームは、ご夫婦共働きで日中はお留守なので、工事中の連絡事は『お手製連絡ノート』で交換日記してコミュニケーションをとりました。また、洗面所とトイレの珪藻土はご主人さんを中心にご家族で仕上げていただき、気持ちのいい水廻りの空間ができあがりました。玄関からの廊下も桜の無垢フローリングになり、一歩足を踏み入れると、自然素材いっぱいの空間がなんだか居心地がよく、気持ちを落ち着かせてくれました。家族みんなが楽しく団らんされる大空間のリビングは、リラックスできる温かな空間です。長期間の工事にご協力下さいましたS様、ありがとうございました。




